ARQUITEK

EDICIÓN N°28   | Julio - Diciembre 2025 | Edición online ISSN-2617-0892

DOI: https://doi.org/10.47796/ra.2025i28

 

Parque-biblioteca con integración social y cultural en la ciudad de Huánuco[1]

Library-park with social and cultural integration in the city of Huánuco

DOI: 10.47796/ra.2025i28.1294

 

PRESENTADO:  31.08.25

ACEPTADO:  22.10.25

 

BEKIN BAUER DAGA ALMERCO[2]

Universidad Nacional Hermilio Valdizan. Huánuco, Perú

ORCID: 0000-0003-2753-585X

bdaga@unheval.edu.pe

 

MAYRA BANESA SALAZAR AMBROSIO[3]

Universidad Nacional Hermilio Valdizan. Huánuco, Perú

ORCID: 0009-0005-2720-7882

mayra.salazar@unheval.pe

 

 

 

RESUMEN

Las bibliotecas representan espacios para la diversidad, la preservación y transmisión de la herencia cultural, al promover el desarrollo ciudadano y garantizar el acceso a la información de manera equitativa. El Perú no cuenta con una suficiente infraestructura bibliotecaria pública, lo que se refleja en una baja densidad de 1.62 bibliotecas por cada 100 000 habitantes. Esta situación limita el desarrollo social y cultural de las ciudades, sobre todo de aquellas que se encuentran en zonas vulnerables, inseguras y poco desarrolladas. De igual manera, en la ciudad de Huánuco, las municipalidades que carecen de bibliotecas públicas ascienden a un 83,3 %, y, las que cuentan con bibliotecas, presentan condiciones precarias. Por ello, se busca integrar funciones sociales, culturales y educativas, mediante el planteamiento y diseño de un parque-biblioteca, impulsando la interacción ciudadana y la cohesión cultural y social. Este espacio se plantea como un lugar abierto y dinámico que busca disminuir las brechas socioculturales, fortalecer el bienestar y consolidar la organización e interacción del espacio-comunidad.

Palabras clave: integración cultural, parque biblioteca, integración social.

 

ABSTRACT

The library is an essential cultural space for the preservation and dissemination of heritage, as it promotes civic development and ensures equitable access to information. In Peru, public library infrastructure remains insufficient, with a density as low as 1.62 libraries per 100,000 inhabitants. This scarcity limits both social and cultural progress, particularly in vulnerable and underdeveloped areas. In the case of Huánuco, 83.3% of municipalities lack public libraries, and those that exist operate under precarious conditions. To address this gap, the proposal introduces the design of a library park that integrates social, cultural, and educational functions, fostering citizen interaction and strengthening cultural and social ties. This space is conceived as an open and dynamic environment aimed at reducing socio-cultural disparities, enhancing public safety, and consolidating community bonds.

Keywords: Cultural integration, Library park, Social integration.

 

INTRODUCCIÓN

Según Gamero, A. (2017), la biblioteca, reconocida históricamente como institución cultural, es un espacio que resguarda la memoria colectiva y cumple un papel fundamental en la preservación, transmisión y difusión del patrimonio cultural. Sin embargo, a pesar de la relevancia de sus funciones, su presencia y valoración continúan siendo limitadas, en especial en comunidades con menor índice de desarrollo.

Cabe mencionar que las estadísticas a nivel internacional evidencian que el progreso de una región, ciudad o localidad va ligado, principalmente, a la disponibilidad y calidad de las bibliotecas públicas; es decir, que el número de bibliotecas y el nivel de desarrollo alcanzado guardan una relación directa. En ese sentido, Eslovaquia y Suecia, por ejemplo, son dos países donde el nivel de desarrollo alcanzado es respaldado por sus 138 bibliotecas registradas para al menos 100 000 habitantes; mientras que, en otros países con menor desarrollo, como Yemen o Somalia, apenas alcanzan 0.019 por cada 100 000 personas. Bajo esta perspectiva, la presencia de bibliotecas puede asumirse como una institución para el progreso y la seguridad de una sociedad (Gamero, 2017).

De acuerdo con el Registro Nacional de Municipalidades – RENAMU  y la Biblioteca Nacional del Perú  (2021), en el Perú, la cantidad de infraestructuras bibliotecarias es apenas 1.62 bibliotecas por cada 100 000 habitantes; es decir, que de las 1874 municipalidades registradas, solo 521 cuentan con bibliotecas, esto indica que más del 73,7% de municipalidades carecen de bibliotecas, lo que evidencia un déficit de cobertura bibliotecaria a nivel nacional, en especial en sectores donde el progreso y el desarrollo son limitados, por lo que se reafirma una vez más que una ciudad carente y con menor índice de progreso son las que no cuentan con suficiente cobertura bibliotecaria.

Bajo este panorama, la región de Huánuco presenta un índice de desarrollo inferior al de otras regiones, y esto se ve reflejado en su limitada oferta bibliotecaria —solo 16,7% bibliotecas públicas por municipalidad—; mientras que, a nivel provincial, el déficit es aún más notorio con solo dos bibliotecas públicas que brindan sus servicios a una población de más de 315 799 habitantes, lo que equivale a una densidad de apenas 0.65 bibliotecas por cada 100 000 personas (INEI, 2020; BNP, 2021).

Estas bibliotecas funcionan en condiciones inadecuadas y con servicios limitados, lo que restringe su alcance y mantiene baja la participación cultural y el nivel de conectividad social, por lo que se plantea el diseño de una infraestructura bibliotecaria con entorno recreativo (parque-biblioteca) en la ciudad de Huánuco, pensado como un espacio inclusivo y de libre acceso con respuesta a las principales brechas y necesidades de la región en los tres sectores relevantes para su desarrollo: educativo, social y cultural.

MATERIALES Y MÉTODOS

El desarrollo del estudio se sustentó en una investigación de carácter bibliográfico, orientada por una metodología estructurada que contempló la revisión documental de proyectos, estudios previos e investigaciones arquitectónicas, así como el análisis de modelos construidos y fuentes digitales de información estadística.

Entre las referencias consultadas destacan organismos e instituciones como la Biblioteca Nacional del Perú (BNP) y el Instituto Nacional de Estadística e Informática (INEI), además de investigaciones académicas, tesis locales y planes urbanos, como el PDU de Huánuco.

Se priorizó, también, la revisión de documentos elaborados en los últimos cinco años, con el fin de asegurar datos actualizados y pertinentes; y se incorporaron estudios e indicadores estadísticos emitidos por entidades oficiales, junto con otros informes complementarios, que contribuyeran a una comprensión integral y detallada de la realidad urbana y comunitaria de la capital de Huánuco.

ANÁLISIS DEL CONTEXTO

Área de influencia del proyecto

Considerando las características poblacionales y el contexto urbano regional, la ciudad de Huánuco fue definida como el punto central de intervención para el proyecto. La iniciativa está orientada a beneficiar de manera prioritaria a los distritos que presentan mayor densidad poblacional; aunque, si bien la atención directa se concentra en estos distritos, el impacto del proyecto trasciende hacia la totalidad de la población huanuqueña.

Figura 1

Análisis del radio de acción del proyecto

Nota. Tomado de Salazar (2024).

 

 

 

Contexto cultural y social

Huánuco es una ciudad que presenta un déficit de equipamientos públicos que integren espacios flexibles orientados a la educación y el desarrollo sociocultural, dirigidos a un entorno social variado y en continuo progreso y transformación. En respuesta a esta situación, el presente proyecto se plantea como una propuesta de infraestructura urbana-integradora, donde en un solo lugar se reúnen dichas funciones y se busca promover la colaboración constante de diferentes sectores de la sociedad.

Los beneficiarios directos de la propuesta son, principalmente, los habitantes de los distritos con mayor población: Huánuco (95 540), Amarilis (88 635), Santa María del Valle (21 872) y Pillco Marca (51 354), que, en conjunto, concentran el mayor número de residentes de la provincia. La densidad poblacional y la dinámica social de estas áreas justifican su inclusión prioritaria en la intervención arquitectónica.

El proyecto, además, reconoce el rol de los trabajadores culturales. Según datos del Registro Nacional del Artesano (RNA), el número de artesanos inscritos en la ciudad de Huánuco asciende a 472 hasta la fecha. Sus oficios tradicionales —el bordado, el tejido artesanal, la labor textil, entre otros— serán promovidos mediante la incorporación de talleres especializados y espacios de exhibición, pensados para estimular el valor cultural y transmitir cada creación artesanal mediante su producción.

En línea con lo anterior, se van a considerar, también, a algunas asociaciones culturales activas en la localidad, las cuales agrupan a diversas manifestaciones culturales, como las danzas folclóricas, la música local, la literatura, las artes plásticas y las cuadrillas de los Negritos de Huánuco. Según el Registro Nacional de Trabajadores y Organizaciones de la Cultura y las Artes de Perú – RENTOCA (2024), en la provincia existen al menos 1071 colectivos activos. Frente a esta realidad, el proyecto busca promover la práctica, enseñanza y divulgación de estas expresiones artísticas y culturales mediante un entorno arquitectónico con ambientes adecuados (Salazar, 2024).

Otro sector considerado son los estudiantes y universitarios, actores clave en la dinámica urbana, quienes requieren espacios apropiados para la lectura, la investigación y el intercambio académico. Por ello, el proyecto busca potenciar su desarrollo individual y colectivo bajo un enfoque integrador mediante la distribución espacial de bibliotecas especializadas, salas de estudio, y espacios de interacción social y cultural.

De igual forma, se atiende a los turistas e investigadores que visitan Huánuco motivados por su diversidad cultural. Según datos del MINCETUR (2022), Huánuco recibe alrededor de 709 985 turistas tanto extranjeros como nacionales. Con este público en mente, el diseño incorpora espacios destinados para la divulgación de libros y revistas locales, salas de exposición y circuitos guiados que permitan una interacción directa con los valores sociales, educativos y culturales de la región. En conclusión, se plantea una infraestructura bibliotecaria denominada parque-biblioteca por su característica integradora, destinada a articular distintos sectores de la población. Su propósito es activar y fortalecer los vínculos culturales, sociales y educativos, brindando servicios flexibles y de calidad.

Equipamientos urbanos circundantes

Identificación de los equipamientos educativos, sociales, recreativos y culturales en la zona de influencia. Estos corresponden a los distritos más poblados de la región, que, en conjunto, conforman el núcleo urbano del departamento.

Infraestructura bibliotecaria

La red de bibliotecas municipales en Huánuco es muy limitada, de las 84 municipalidades existentes, menos de la tercera parte cuenta con bibliotecas públicas, lo que genera un vacío significativo en la oferta de espacios destinados a la educación y la cultura. La infraestructura, en este caso, no solo brinda acceso a diversa información educativa y cultural, sino que también actúa como un nodo que fortalece el tejido social y urbano, promoviendo entornos inclusivos, seguros y con mucha dinámica cultural.

A nivel provincial, esta realidad es todavía más alarmante, ya que solo se disponen de dos bibliotecas públicas o municipales para más de 306 619 personas. Una de las bibliotecas está asociada a la universidad pública de la ciudad, ubicada en el distrito de Pillco Marca; y la otra, ubicada en el distrito de Huánuco, funciona de manera deficiente, como un almacén de libros, y sin cumplir los parámetros técnicos propios de este equipamiento. Esta realidad evidencia la falta de bibliotecas públicas y accesibles, incluso en ciudades más pobladas de la región, lo que profundiza las brechas sociales al carecer de infraestructuras públicas donde se cultiven los valores y la cultura.

 

Figura 2

Fachada de la biblioteca central de la Universidad Nacional Hermilio Valdizán

Nota. Imagen tomada del sitio web de la Universidad Nacional Hermilio Valdizán. Fuente: UNHEVAL (2025).

 

 

Figura 3

Sala de lectura de la Biblioteca Pública Municipal de Huánuco

Nota. Imagen tomada del portal de Facebook de la Biblioteca Pública Municipal de Huánuco.

Fuente: https://www.facebook.com/BibliotecaPublicaMunicipalDeHuanuco/

 

 

 

 

Equipamientos sociales, cultural y recreativa

Huánuco es una ciudad con mucha desigualdad social y con una mala distribución de sus espacios culturales y recreativos. Si bien cuenta con equipamientos de tipo pasivo y activo, menos del 20 % de ellos se encuentran en los distritos de Santa María del Valle y Pillco Marca, dejando en clara su desventaja ante Huánuco y Amarilis, distritos que poseen la mayor cantidad de estos espacios recreativos y que ocupan, prácticamente, todo tipo de infraestructura cultural.

De igual manera, en lo que respecta a los espacios de recreación pasiva, los distritos de Amarilis y Huánuco concentran la mayor cantidad de malecones, parques y alamedas, sumando en conjunto 135 parques. En contraste, los otros dos distritos apenas disponen de algunos de estos espacios y la ciudad en general no cuenta con parques zonales ni sectoriales.

En cuanto a las áreas recreativas activas, la oferta es limitada: se registran únicamente cinco infraestructuras principales ubicadas en Huánuco y Amarilis, distritos con mayor concentración de espacios públicos. Estos incluyen dos estadios, un complejo deportivo, una piscina municipal y un coliseo (Plan de Desarrollo Urbano, 2019).

Por otro lado, en el ámbito cultural, el distrito de Huánuco presenta mayor concentración de equipamiento cultural, de las cuales figuran una biblioteca pública, algunos museos, un centro cultural y auditorios vinculados a alguna institución. En contraste, los distritos de Amarilis y Pillco Marca solo disponen de un auditorio vinculado, cada uno; mientras que, Santa María del Valle no cuenta con ningún servicio público cultural, social ni recreativo. Esta situación pone en relieve la urgencia de promover una planificación urbana más equilibrada para los equipamientos culturales y recreativos, priorizando los distritos que cuentan con menor concentración de equipamientos sociales y culturales y donde la población es más densa y demandante (Salazar, 2024).

ANÁLISIS DE SITIO

Con base en el análisis contextual, se determina un sector carente de equipamientos sociales dinamizadores y con alta capacidad de renovación urbana. Bajo este criterio, Pillco Marca es un distrito que presenta dichas características por lo que se considera un punto fundamental, debido a la alta concentración de población vulnerable y a la marcada carencia de espacios culturales y educativos. A esto se suma que la zona presenta antecedentes vinculados a la inseguridad, lo cual refuerza la necesidad de implementar el parque-biblioteca como infraestructura fundamental para recuperar el entorno, revitalizar la zona y transformar la convivencia comunitaria a través de la educación y la integración cultural y social.

Figura 4

Equipamiento urbano circundante

Nota. Tomado de Salazar (2024).

 

Figura 5

Análisis del sitio

 

Nota. Tomado de Salazar (2024).

 

Figura 6

Medidas paramétricas y topográficas

Nota. Tomado de Salazar (2024).

 

 

Figura 7

Análisis solar, vientos y orientación

 

Nota. Tomado de Salazar (2024).

 

 

Figura 8

Accesibilidad y perfil urbano circundante

 

Nota. Tomado de Salazar (2024).

 

 

 

 

 

 

PROGRAMACIÓN ARQUITECTÓNICA

Definición de la población objetivo

La clasificación de la población objetivo se distingue en dos categorías principales: los visitantes permanentes, conformados por los residentes de la zona, estudiantes y el propio personal del parque-biblioteca, quienes acuden de manera frecuente; y los ocupantes temporales, que provienen de otros lugares y realizan visitas ocasionales, como es el caso de turistas, grupos culturales e investigadores.

Programa arquitectónico

El desarrollo del programa arquitectónico se da a partir de la determinación de aforo, tomando como base normas y parámetros de referencia tanto nacionales como internacionales, entre ellos el RNE, las directrices de la BNP, entre otros; además del estudio de las necesidades y brechas particulares determinadas en el presente estudio.

Figura 9

Población objetivo del Proyecto

Nota. Tomado de Salazar (2024).

 

 

 

 

 

Tabla 1

Desarrollo del Programa arquitectónico

 

Parque Biblioteca                                                           

 

Zona

Sub zona

Área

Cultural

Auditorio

1429.45

Explanada

Anfiteatro

 

Educativo

Biblioteca zona adulto mayor

 

1540.90

Biblioteca juvenil

Biblioteca infantil

Servicios generales

 

Social/Centro comunitario

Sala de exposiciones

 

1126.30

Sala mi barrio

CEDEZO*

Talleres

Recreativa

Recreación pasiva                      880.00

Servicios

Cafetería                           330.30

Mantenimiento

Mantenimiento                          30.00

Complementaria

Estacionamiento                        432.00

Área Total

5768.95

Nota. Zonificación general del proyecto. Tomado de Salazar (2024).

*Centro de Desarrollo Empresarial (CEDEZO).

 

IDEACIÓN GRÁFICA

Figura 10

Organigrama functional

Nota. Tomado del proyecto académico de titulación en Arquitectura. UNHEVAL. Salazar (2024).

 

 

 

Figura 11

Conceptualización

Nota. Tomado del proyecto académico de titulación en Arquitectura. UNHEVAL. Salazar (2024).

 

 

Figura 12

Análisis functional

Nota. Tomado de Salazar (2024).

 

 

 

 

PROYECTO ARQUITECTÓNICO

En el marco social

En el aspecto social o comunitario, el aspecto prioritario del proyecto es disponer de sitios o espacios adecuados y accesibles para fomentar actividades representativas de la cultura huanuqueña. En este sector se plantean espacios adecuados para talleres de música, danzas folclóricas, fotografía, dibujo, pintura, escultura y artesanía, establecidos tras analizar las características locales, donde la diversidad cultural y el arte están presentes, aunque sin contar con infraestructuras apropiadas. Asimismo, se incluye un taller de lectura y escritura orientado a la cultura huanuqueña, con el objetivo de difundir y revalorizar las tradiciones desde la infancia hasta la adultez. En conjunto, esta propuesta busca promover las conexiones sociales, desarrollar lazos comunitarios y consolidar la multiculturalidad de la región. Como principal componente articulador y espacio de acceso principal, se proyecta una amplia explanada social, concebida como un espacio libre, de encuentro y circulación que conecta de manera física y simbólica los tres módulos del proyecto: social, cultural y educativo.

Figura 13

Módulo 03 o Bloque Social (Comunitario)

Nota. Tomado de Salazar (2024).

 

 

 

 

En el marco cultural

El aspecto cultural del proyecto tiene como finalidad fomentar actividades escénicas y ofrecer ambientes equipados para la representación artística, orientados a la expresión colectiva y a la puesta en valor de la identidad local. Dentro de este módulo se plantean dos áreas principales: por un lado, el Auditorio Cultural, una edificación techada y equipada con las condiciones técnicas necesarias para acoger obras teatrales, conciertos, foros y diversas manifestaciones durante todo el año; y por otro, el Anfiteatro al aire libre, concebido para actividades comunitarias de gran afluencia, que aprovecha su relación directa con el entorno natural y promueve la apropiación activa del entorno de uso público. Al ser uno de los módulos principales que rodea la explanada de acceso, se consolida como un gran referente cultural de la ciudad, caracterizado por su dinamismo, apertura y vocación integradora.

Figura 14

Módulo 01 o Bloque Cultural

Nota. Tomado del proyecto académico de titulación en Arquitectura. UNHEVAL. Salazar (2024).

 

Figura 15

Corte isométrico del auditorio

 

Nota. Tomado de Salazar (2024).

 

 

 

 

En el marco educativo

Dentro del bloque educativo, la propuesta pretende dar respuesta a la marcada carencia de infraestructuras bibliotecarias municipales y públicas con condiciones adecuadas, una brecha de cobertura reflejada en los registros tanto nacionales como locales. Al reconocer que contar con espacios para la difusión de la lectura garantiza la educación y formación de personas reflexivas y participativas, el proyecto contempla bibliotecas de libre acceso e inclusivas, dirigidas a todas las generaciones.

Con este fin, se organizan áreas específicas, que abarcan desde zonas proyectadas para el público infantil lector hasta ambientes adaptados para personas adultas mayores, distribuidas en los niveles inferiores del bloque 02 para garantizar una accesibilidad apropiada. De igual manera, se integra una biblioteca pública provista de salas para la lectura colectiva e individuales, concebidas para estimular el aprendizaje de manera independiente e incentivar el intercambio de conocimientos.

Figura 16

Módulo 02 o Bloque Educativo

Nota. Tomado de Salazar (2024).

 

 

PLANOS

Figura 17

Plot plan

Nota. Tomado de Salazar (2024).

 

 

Figura 18

Plano de distribución 1.er nivel

Nota. Tomado de Salazar (2024).

 

Figura 19

Plano de distribución 2.do nivel

Nota. Tomado de Salazar (2024).

 

Figura 20

Plano de distribución 3.er nivel

 

Nota. Tomado de Salazar (2024).

 

 

Figura 21

Plano de distribución 4.to nivel

 

Nota. Tomado de Salazar (2024).

 

 

 

Figura 22

Plano de cubierta

 

Nota. Tomado de Salazar (2024).

 

 

 

 

CORTES

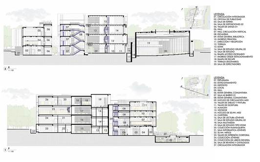
Figura 23

Corte A-A y corte B-B

Nota. Tomado de Salazar (2024).

 

 

Figura 24

Cortes C-C y corte D-D

Nota. Tomado de Salazar (2024).

 

 

Figura 25

Cortes E-E y corte F-F

 

Nota. Tomado del proyecto académico de titulación en Arquitectura. UNHEVAL. Salazar (2024).

 

 

 

ELEVACIONES

Figura 26

Elevación 01 y elevación 02

Nota. Tomado del proyecto académico de titulación en Arquitectura. UNHEVAL. Salazar (2024).

 

 

Figura 27

Elevaciones 03 y elevación 04

 

Nota. Tomado del proyecto académico de titulación en Arquitectura. UNHEVAL. Salazar (2024).

 

 

 

RENDERS 3D

Figura 28

Conjunto arquitectónico en vista general, integrado por los módulos social, cultural y educativo

Nota: Tomado del proyecto académico de titulación en Arquitectura. UNHEVAL. Salazar (2024).

 

 

Figura 29

Rampa integradora de conexión entre auditorio y biblioteca central

 

Nota.  Tomado del proyecto académico de titulación en Arquitectura. UNHEVAL. Salazar (2024).

 

 

 

Figura 30

Circulación exterior, bordes peatonales

 

Nota.  Tomado del proyecto académico de titulación en Arquitectura. UNHEVAL. Salazar (2024).

 

Figura 31

Accesibilidad, rampas y escaleras, biblioteca y auditorio

 

Nota. Tomado del proyecto académico de titulación en Arquitectura. UNHEVAL. Salazar (2024).

 

 

 

Figura 32

Explanada principal, espacio integrador de los módulos principales del proyecto

Nota. Tomado del proyecto académico de titulación en Arquitectura. UNHEVAL. Salazar (2024).

 

 

 

Figura 33

Ingreso principal del módulo educativo

Nota. Tomado del proyecto académico de titulación en Arquitecta. UNHEVAL.

 

 

 

 

 

 

 

 

RESULTADOS

El análisis realizado permitió constatar la grave carencia de infraestructura bibliotecaria en la ciudad de Huánuco, donde además de ser escasas y de uso exclusivo para estudiantes e investigadores, no cumplen con estándares técnicos ni funcionales, limitando el acceso de la ciudadanía a servicios culturales básicos.

Se identificó que los distritos más poblados de la región, que concentran más del 80 % de la población de la provincia, carecen de equipamientos culturales y recreativos equitativamente distribuidos, siendo el distrito de Pillco Marca quien presenta mayor déficit en el sector. Asimismo, se verificó la existencia de una comunidad cultural activa, conformada por más de 1000 asociaciones registradas y cerca de 500 artesanos que requieren espacios para el desarrollo de sus actividades. Sin embargo, estos grupos se ven obligados a realizar sus prácticas en ambientes improvisados, sin condiciones adecuadas para la difusión y preservación de sus manifestaciones artísticas.

Finalmente, el estudio y el análisis realizados demuestran que los distritos más poblados, y con mayor déficit de espacios públicos y sociales, poseen un alto potencial de transformación urbana, al concentrar población vulnerable y presentar problemas de inseguridad, déficit de equipamientos públicos y exclusión social. Este escenario refuerza la necesidad de implementar un parque-biblioteca como proyecto estratégico capaz de articular las dimensiones educativa, cultural y social.

DISCUSIÓN

Los resultados obtenidos ponen en evidencia una brecha estructural en el acceso a servicios culturales, sociales y educativos en Huánuco, brecha que no solo limita el desarrollo personal, sino que también profundiza la desigualdad social. La ausencia de bibliotecas públicas, modernas y de espacios culturales accesibles contribuye a mantener altos niveles inseguridad, baja participación ciudadana y un escaso aprovechamiento del capital cultural de la región.

En este contexto, la propuesta del parque-biblioteca adquiere un valor transformador. No se trata únicamente de un edificio, sino de un equipamiento urbano integrador que responde directamente a las necesidades de la población. Al incorporar módulos educativos, culturales y sociales, el proyecto genera un espacio multifuncional que facilita la formación ciudadana, fortalece la identidad local y promueve la cohesión social. Asimismo, al incluir áreas específicas para estudiantes, artesanos, asociaciones culturales y turistas, la propuesta se convierte en un punto de encuentro intergeneracional e intercultural, alineándose con modelos internacionales de parques-biblioteca que han demostrado tener impactos positivos en contextos urbanos similares.

CONCLUSIONES

El estudio realizado visualiza y reafirma la urgencia de generar espacios para la difusión e interacción sociocultural en la capital del departamento, resaltando especialmente la cobertura mínima de bibliotecas públicas modernas, inclusivas y funcionales. El diagnóstico evidenció la ausencia de equipamientos capaces de promover el aprendizaje y la lectura en conjunto, así como de garantizar la accesibilidad y la participación interactiva de una diversidad cultural vinculadas a los diversos grupos sociales. Bajo esta realidad, se plantea el proyecto bibliotecario como una alternativa arquitectónica para abordar las problemáticas y brechas que aquejan la ciudad, desde tres dimensiones esenciales: la educativa, la diversidad cultural y el aspecto social. El proyecto no solo garantiza accesibilidad a una variedad de información, sino también ofrece una explanada de conexión como área libre para la interacción, la participación ciudadana y la formación integral.

Durante el proceso de diseño se incorporaron lineamientos ajustados a las condiciones locales, junto con criterios universales de accesibilidad y funcionalidad, lo que permitió consolidar una propuesta técnica viable y coherente. El proyecto alcanzó la etapa de planos y modelado 3D, herramientas que facilitaron su validación, demostrando su factibilidad y la posibilidad de replicarlo en contextos con problemáticas semejantes. En síntesis, este trabajo confirma que la arquitectura puede convertirse en un medio eficaz para solucionar necesidades socioculturales y educativas de la localidad o región de estudio, ampliando la accesibilidad de manera equitativa e igualitario a la investigación y a los nuevos conocimientos, fortaleciendo las raíces culturales y contribuyendo al progreso de la población.

 

REFERENCIAS BIBLIOGRÁFICAS

Biblioteca Central Javier Pulgar Vidal - UNHEVAL. (2025). Biblioteca Central Javier Pulgar Vidal. Universidad Nacional Hermilio Valdizán. https://bibliotecacentral.unheval.edu.pe/

Biblioteca Pública Municipal de Huánuco. (2025, mayo 20). Biblioteca Pública Municipal de Huánuco [Página de Facebook]. Facebook. https://www.facebook.com/BibliotecaPublicaMunicipalDeHuanuco

Biblioteca Nacional del Perú [BNP]. (2015). Boletín estadístico 2010–2014: Bibliotecas públicas municipales. Biblioteca Nacional del Perú. https://issuu.com/mitchelltejada/docs/boletin_estadistico_2010_2014_bnp

Biblioteca Nacional del Perú [BNP]. (2021). Situación de las bibliotecas públicas municipales. Sistema Nacional de Bibliotecas. https://estadistica.snb.gob.pe/cobertura-y-estado-de-bibliotecas

Gamero, A. (2017, 08 de julio). Los países que tienen más y menos bibliotecas por número de habitantes. La Piedra de Sísifo. Gabinete de curiosidades. https://lapiedradesisifo.com/2017/07/08/los-paises-que-tienen-mas-y-menos-bibliotecas-por-numero-de-habitantes/

Instituto Nacional de Estadística e Informática [INEI]. (2020). Perú: Estimaciones y proyecciones de población departamental por año calendario y edad simple, 1995–2030. INEI. https://www.inei.gob.pe/media/MenuRecursivo/publicaciones_digitales/Est/Lib1722/

Instituto Nacional de Estadística e Informática [INEI]. (2020). Perú: Estimaciones y proyecciones de población por departamento, provincia y distrito, 2018–2020 (Boletín especial N.º 26). INEI. https://www.inei.gob.pe/media/MenuRecursivo/publicaciones_digitales/Est/Lib1715/libro.pdf

Instituto Nacional de Estadística e Informática [INEI]. (2022). Perú: Indicadores de gestión municipal 2022. INEI. https://www.inei.gob.pe/media/MenuRecursivo/publicaciones_digitales/Est/Lib1902/libro.pdf

Ministerio de Comercio Exterior y Turismo [MINCETUR]. (2022, mayo). Centro de información turística. https://www.mincetur.gob.pe/centro_de_informacion/datos_turismo.htm

Municipalidad Provincial de Huánuco. (2019). Plan de desarrollo urbano de la ciudad de Huánuco, 2019–2029. Municipalidad Provincial de Huánuco.

Registro Nacional de Trabajadores y Organizaciones de la Cultura y las Artes [RENTOCA]. (2021–2024). Registro Nacional de Trabajadores y Organizaciones de la Cultura y las Artes. Ministerio de Cultura del Perú. https://aplicaciones.cultura.gob.pe/MINC-RENTOCA/facilitador/bandejaPrincipal

Salazar Ambrosio, M. B. (2024). Parque biblioteca comunitaria con integración social y cultural en la ciudad de Huánuco – 2024 [Tesis de licenciatura, Universidad Nacional Hermilio Valdizán]. Repositorio Institucional UNHEVAL. https://repositorio.unheval.edu.pe/item/c70a79b6-1eaa-4e5f-907e-6b9ed8a45fd4

 



[1]  El presente artículo surge bajo el análisis sociocultural y educativo de la ciudad de Huánuco. Frente a las brechas identificadas, se plantea un equipamiento urbano con características integradoras cuya propuesta tiene como origen una tesis elaborada para la titulación en arquitectura.

[2] Arquitecto en diseño y ejecución de proyectos, Doctor en Medio Ambiente y Desarrollo Sostenible, Maestro en Educación con mención en Investigación y Docencia Superior por la escuela de Posgrado de la UNHEVAL y docente de la escuela de Arquitectura en el área de pregrado y posgrado de la misma universidad.

[3] Arquitecta interesada en proyectos cuyo enfoque principal es el desarrollo social, con una especialización en modelado BIM para edificaciones, egresada de la Universidad Nacional Hermilio Valdizán (UNHEVAL) Huánuco - Perú.